Moore Ruble Yudell Architects have designed a project that provides affordable family housing in Santa Monica, California.
Project description
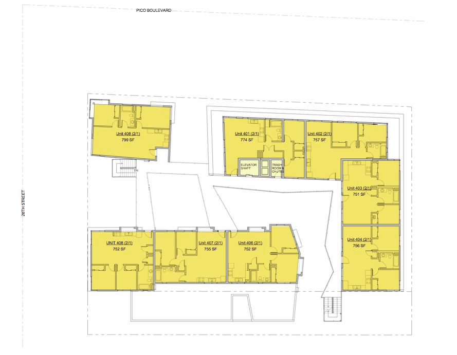
This project provides much needed 100% affordable family housing on a previously underutilized site with an auto workshop in the heart of Santa Monica’s commercial corridor. The 42,263 sf building accommodates 33 affordable units above active retail and community space organized around an engaging courtyard.
The developer asked the architect to prepare an initial zoning capacity followed by an architectural design with the aim of providing 35 units on a very tight site which straddled between two zoning districts. The differing densities, height limits, setbacks, step-backs and parking requirements of the two zones became the central challenge in making the project feasible. The design achieves the affordable housing vision of the developer by creating an engaging, open, livable, sustainable density, while addressing the complexity of the site’s constraints and agenda of the neighboring community.
The project contributes to the life of its residents, neighbors and the City, by providing a pedestrian-friendly urban façade to enliven the corner of Pico and 28th streets. A break in the south façade provides pedestrian access and engages the interior courtyard with the surrounding street life. On the east, a two-story volume accommodating a community room helps to break down the mass and allows the ocean breeze to create naturally ventilated spaces. The courtyard as the social heart optimizes interaction and incorporates a playful array of bridges, walkways and stairs.
The architectural design emphasizes economy by using a layering approach of projected and recessed planes, and a simple palette of materials including multicolored cement board panels.
Architect: Moore Ruble Yudell
Photography by John Linden













