
In Madrid, Spain, Fran Silvestre Arquitectos have created a house that does not feel fixed or formal, despite its precise geometry. Rather than designing a compact object, the home unfolds through a series of curved volumes that rise gently across the site. The experience is calm and intuitive, shaped by proportion, movement, and spatial clarity. This is a project where architecture feels carefully controlled, yet surprisingly natural to live in.

The architecture is composed of several elongated volumes, each formed with a large radius curve. These pieces are arranged to sit alongside one another, creating a layout that feels structured without being rigid. Because the volumes run lengthwise, movement through the house happens gradually rather than all at once. Spaces open up in sequence, and circulation becomes part of the experience rather than something hidden.




The curved geometry helps soften the precision of the structure. While the design is carefully controlled, it avoids feeling strict, allowing the house to be read as something fluid and continuous. Together, these volumes create a clear architectural order. The home is not experienced as a single moment, but as a series of connected spaces shaped by form, proportion, and movement.









The swimming pool sits on the lowest level of the house. This location establishes the starting point of the overall layout.Positioned alongside the guest rooms, the pool becomes part of the everyday spatial sequence. It is integrated into the architecture rather than treated as a separate feature.



A wide shaded terrace is formed beneath the highest volume of the house. This space exists because of the way the architecture bridges above it. Instead of being added later, the terrace feels like a natural result of the structure. Shade, openness, and proportion all come directly from the building’s form.




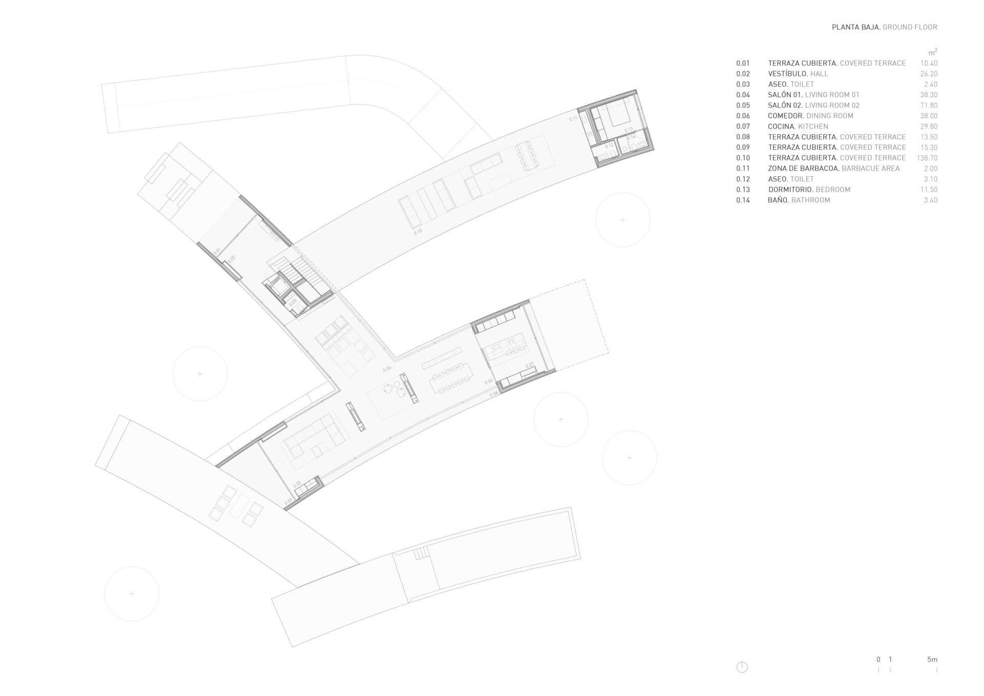
The living room is part of the main day area, located on the middle level. This floor is oriented toward views of a nearby lake. Its position makes it the heart of the house. It sits between the more grounded spaces below and the private rooms above, reinforcing the upward flow of the design.


The dining area shares the same open arrangement as the rest of the day spaces. It follows the same curved geometry and elongated layout. Rather than being defined by walls, the space is shaped by movement and alignment. Visual connections remain strong throughout this level.


The kitchen is woven into the day area and follows the same spatial logic. It is not treated as a closed or isolated room. Its placement supports the idea of the pavilion as an open space that spreads outward. Daily functions are organised by geometry instead of strict boundaries.

Circulation plays a major role in how the house feels. Hallways are designed as active spaces formed by the meeting of the curved volumes. At the point where the different parts of the house come together, a central communication core links all levels. This makes moving through the home feel fluid and continuous.




The bedrooms and bathrooms are located on the highest level, gathered into a single architectural piece. This volume acts like a bridge across the house. By lifting these private spaces above the rest, the design creates separation without disconnecting them from the overall flow.

There’s also an indoor pool that’s integrated into the architecture rather than treated as a special feature, reinforcing the consistency of the design.

This short video tour shows how the curved forms, vertical layout, and circulation work together as one continuous architectural experience.
The architectural drawings highlight the importance of proportion throughout the project. Every width and dimension is carefully considered.







This Madrid house is ultimately shaped by a simple idea. Proportion. Through carefully measured volumes and a clear ascending layout, Fran Silvestre Arquitectos have created a home that feels calm, logical, and easy to move through.