A Modern Addition That Reshapes a Classic Australian Home

At the rear, the new addition shifts the experience entirely. The architecture becomes more streamlined, opening into a bright, open-plan zone that connects directly to a private terrace.

Stone paving and built-in bench seating define the outdoor space, making it a natural extension of the interior. Large openings blur the boundary between inside and out, allowing the home to expand outward for entertaining or relaxed family time.

In Sydney’s Eastern Suburbs, Randwick Modern by Sandbox Studio reshapes a period home into something lighter, more open, and built for a young family. The project pairs a full restoration with a modern extension, bringing together classic detailing and a pared-back approach defined by clean lines, natural materials, and strong functionality.

A Restored Facade

The original structure has been fully restored, keeping its character while setting the tone for what follows. From the front door, the home still reads as a classic period residence, grounding the project in its context. This entry point acts as a quiet transition before the layout begins to open up toward the rear.

The original home has been fully restored, keeping its character while setting the tone for what follows. From the front door, the home still reads as a classic period residence, grounding the project in its context. This entry point acts as a quiet transition before the layout begins to open up toward the rear.
The original home has been fully restored, keeping its character while setting the tone for what follows. From the front door, the home still reads as a classic period residence, grounding the project in its context. This entry point acts as a quiet transition before the layout begins to open up toward the rear.

A Light-Filled Extension That Opens to the Outdoors

At the rear, the new addition shifts the experience entirely. The architecture becomes more streamlined, opening into a bright, open-plan zone that connects directly to a private terrace.

Stone paving and built-in bench seating define the outdoor space, making it a natural extension of the interior. Large openings blur the boundary between inside and out, allowing the home to expand outward for entertaining or relaxed family time.

At the rear, the new addition shifts the experience entirely. The architecture becomes more streamlined, opening into a bright, open-plan zone that connects directly to a private terrace.

Stone paving and built-in bench seating define the outdoor space, making it a natural extension of the interior. Large openings blur the boundary between inside and out, allowing the home to expand outward for entertaining or relaxed family time.
At the rear, the new addition shifts the experience entirely. The architecture becomes more streamlined, opening into a bright, open-plan zone that connects directly to a private terrace.

Stone paving and built-in bench seating define the outdoor space, making it a natural extension of the interior. Large openings blur the boundary between inside and out, allowing the home to expand outward for entertaining or relaxed family time.

The Social Heart of the Home

At the center of the open-plan layout, the kitchen island doubles as a dining table. It works as both a gathering point and a functional surface, linking the kitchen and living areas.

At the center of the open-plan layout, the kitchen island doubles as a dining table. It works as both a gathering point and a functional surface, linking the kitchen and living areas.
At the center of the open-plan layout, the kitchen island doubles as a dining table. It works as both a gathering point and a functional surface, linking the kitchen and living areas.

A Minimal Streamlined Kitchen

The kitchen follows a minimalist approach, with clean lines and a restrained palette. Natural stone countertops and backsplash, cabinets with curved designs, and timber from the island introduce texture and depth without relying on bold color.

The kitchen follows a minimalist approach, with clean lines and a restrained palette. Natural stone countertops and backsplash, cabinets with curved designs, and timber from the island introduce texture and depth without relying on bold color.
The kitchen follows a minimalist approach, with clean lines and a restrained palette. Natural stone countertops and backsplash, cabinets with curved designs, and timber from the island introduce texture and depth without relying on bold color.
The kitchen follows a minimalist approach, with clean lines and a restrained palette. Natural stone countertops and backsplash, cabinets with curved designs, and timber from the island introduce texture and depth without relying on bold color.
The kitchen follows a minimalist approach, with clean lines and a restrained palette. Natural stone countertops and backsplash, cabinets with curved designs, and timber from the island introduce texture and depth without relying on bold color.
The kitchen follows a minimalist approach, with clean lines and a restrained palette. Natural stone countertops and backsplash, cabinets with curved designs, and timber from the island introduce texture and depth without relying on bold color.
The kitchen follows a minimalist approach, with clean lines and a restrained palette. Natural stone countertops and backsplash, cabinets with curved designs, and timber from the island introduce texture and depth without relying on bold color.

Smart Storage and a Subtle Shift in Level

Built-in storage is integrated throughout, keeping the space uncluttered and functional. These elements blend into the architecture, maintaining the clean aesthetic.

A subtle change in level, marked by steps, leads up into the living room, creating a gentle separation without closing off the space.

Built-in storage is integrated throughout, keeping the space uncluttered and functional. These elements blend into the architecture, maintaining the clean aesthetic.

A subtle change in level, marked by steps, leads up into the living room, creating a gentle separation without closing off the space.

A Elevated Space for Relaxed Living

The living room sits slightly above the kitchen, offering a more relaxed setting within the open-plan layout. Natural light filters in from multiple directions, softening the space and highlighting the material palette. It feels connected to everything around it while still having its own identity.

The living room sits slightly above the kitchen, offering a more relaxed setting within the open-plan layout. Natural light filters in from multiple directions, softening the space and highlighting the material palette. It feels connected to everything around it while still having its own identity.
The living room sits slightly above the kitchen, offering a more relaxed setting within the open-plan layout. Natural light filters in from multiple directions, softening the space and highlighting the material palette. It feels connected to everything around it while still having its own identity.

A Clean Connection Between Levels

The staircase links the two levels, continuing the home’s clean and simple design language. It acts as both a functional element and a visual connector between floors.

The staircase links the two levels, continuing the home’s clean and simple design language. It acts as both a functional element and a visual connector between floors.

A Practical Guest Space on the Main Level

Before heading upstairs, there’s a guest bedroom with some original details, offering a quiet and practical space for visitors.

A guest bedroom with some original details, offering a quiet and practical space for visitors.

A Simple and Refined Guest Bathroom

The guest bathroom sits nearby and pairs earthy terracotta-colored tile with soft gray surfaces for a look that feels warm and grounded. The ribbed wood vanity adds texture, while the round vessel sink keeps the lines clean and sculptural.

This guest bathroom sits nearby and pairs earthy terracotta-colored tile with soft gray surfaces for a look that feels warm and grounded. The ribbed wood vanity adds texture, while the round vessel sink keeps the lines clean and sculptural.
This guest bathroom sits nearby and pairs earthy terracotta-colored tile with soft gray surfaces for a look that feels warm and grounded. The ribbed wood vanity adds texture, while the round vessel sink keeps the lines clean and sculptural.
This guest bathroom sits nearby and pairs earthy terracotta-colored tile with soft gray surfaces for a look that feels warm and grounded. The ribbed wood vanity adds texture, while the round vessel sink keeps the lines clean and sculptural.
This guest bathroom sits nearby and pairs earthy terracotta-colored tile with soft gray surfaces for a look that feels warm and grounded. The ribbed wood vanity adds texture, while the round vessel sink keeps the lines clean and sculptural.
This guest bathroom sits nearby and pairs earthy terracotta-colored tile with soft gray surfaces for a look that feels warm and grounded. The ribbed wood vanity adds texture, while the round vessel sink keeps the lines clean and sculptural.

A Functional Laundry

Also on the ground floor is the laundry room that shows how hardworking spaces can still feel calm. Crisp white cabinetry keeps the look clean, while the terrazzo floor brings in soft pattern and durability that can handle everyday messes with ease.

This laundry room shows how hardworking spaces can still feel calm. Crisp white cabinetry keeps the look clean, while the terrazzo floor brings in soft pattern and durability that can handle everyday messes with ease.

Natural Light Throughout

Skylights and large openings throughout the home, like above the staircase, draw natural light deep into the interior, highlighting timber, stone, and textured finishes that add warmth without overpowering the neutral palette.

Skylights and large openings throughout the home, like above the staircase, draw natural light deep into the interior, highlighting timber, stone, and textured finishes that add warmth without overpowering the neutral palette.

A Private Primary Suite

Upstairs, the primary bedroom suite provides a more private zone for the homeowners. The bedroom has pale layered bedding, creamy walls, and full-height sheer curtains filtering the daylight into a gentle glow. The light wood wardrobe in its own area adds warmth and useful storage without crowding the room.

Upstairs, this primary bedroom suite provides a more private zone for the homeowners. The bedroom has pale layered bedding, creamy walls, and full-height sheer curtains filtering the daylight into a gentle glow. The light wood wardrobe in its own area adds warmth and useful storage without crowding the room.
Upstairs, this primary bedroom suite provides a more private zone for the homeowners. The bedroom has pale layered bedding, creamy walls, and full-height sheer curtains filtering the daylight into a gentle glow. The light wood wardrobe in its own area adds warmth and useful storage without crowding the room.
Upstairs, this primary bedroom suite provides a more private zone for the homeowners. The bedroom has pale layered bedding, creamy walls, and full-height sheer curtains filtering the daylight into a gentle glow. The light wood wardrobe in its own area adds warmth and useful storage without crowding the room.

The primary en-suite bathroom has soft stone-look surfaces, a frameless glass shower, and warm brass details bringing subtle polish to the room. The veined vanity surround adds just enough movement and color, while the sculptural wall light and fresh white blooms keep the space feeling personal and calm.

This primary en-suite bathroom has soft stone-look surfaces, a frameless glass shower, and warm brass details bringing subtle polish to the room. The veined vanity surround adds just enough movement and color, while the sculptural wall light and fresh white blooms keep the space feeling personal and calm.
This primary en-suite bathroom has soft stone-look surfaces, a frameless glass shower, and warm brass details bringing subtle polish to the room. The veined vanity surround adds just enough movement and color, while the sculptural wall light and fresh white blooms keep the space feeling personal and calm.
This primary en-suite bathroom has soft stone-look surfaces, a frameless glass shower, and warm brass details bringing subtle polish to the room. The veined vanity surround adds just enough movement and color, while the sculptural wall light and fresh white blooms keep the space feeling personal and calm.
This primary en-suite bathroom has soft stone-look surfaces, a frameless glass shower, and warm brass details bringing subtle polish to the room. The veined vanity surround adds just enough movement and color, while the sculptural wall light and fresh white blooms keep the space feeling personal and calm.

A Flexible Bedroom for Growing Needs

Also on the upper floor of the home is a child’s bedroom, which feels bright, calm, and full of quiet imagination, with its sculptural sloped ceiling, soft white walls, and pale carpet keeping everything light and airy.

This child's bedroom feels bright, calm, and full of quiet imagination, with its sculptural sloped ceiling, soft white walls, and pale carpet keeping everything light and airy.

A Family Bathroom with a Hint of Color

The upstairs family bathroom features soft gray walls, cloudy blue tiles, and a crisp white tub creating a fresh, airy look under the skylight. The light wood vanity and small stool bring in warmth, while the terrazzo floor adds texture and everyday durability.

The upstairs family bathroom features soft gray walls, cloudy blue tiles, and a crisp white tub creating a fresh, airy look under the skylight. The light wood vanity and small stool bring in warmth, while the terrazzo floor adds texture and everyday durability.
The upstairs family bathroom features soft gray walls, cloudy blue tiles, and a crisp white tub creating a fresh, airy look under the skylight. The light wood vanity and small stool bring in warmth, while the terrazzo floor adds texture and everyday durability.
The upstairs family bathroom features soft gray walls, cloudy blue tiles, and a crisp white tub creating a fresh, airy look under the skylight. The light wood vanity and small stool bring in warmth, while the terrazzo floor adds texture and everyday durability.

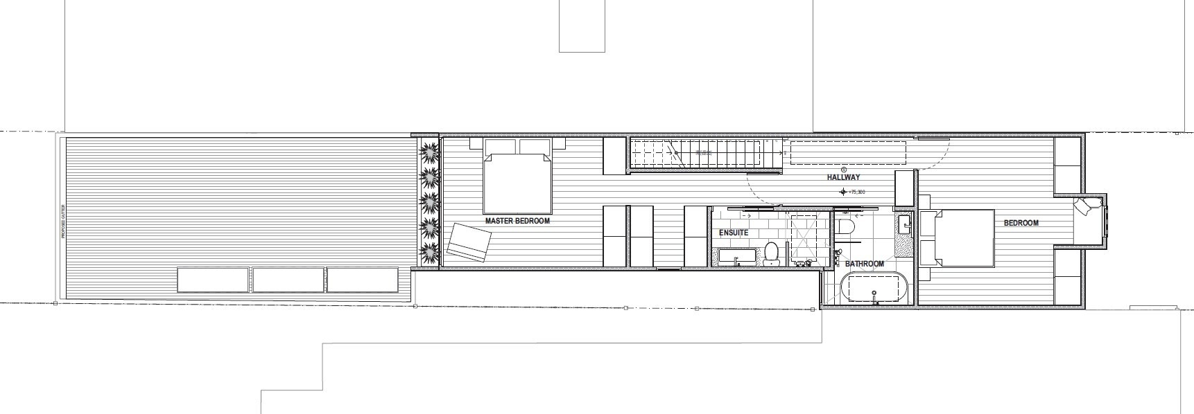
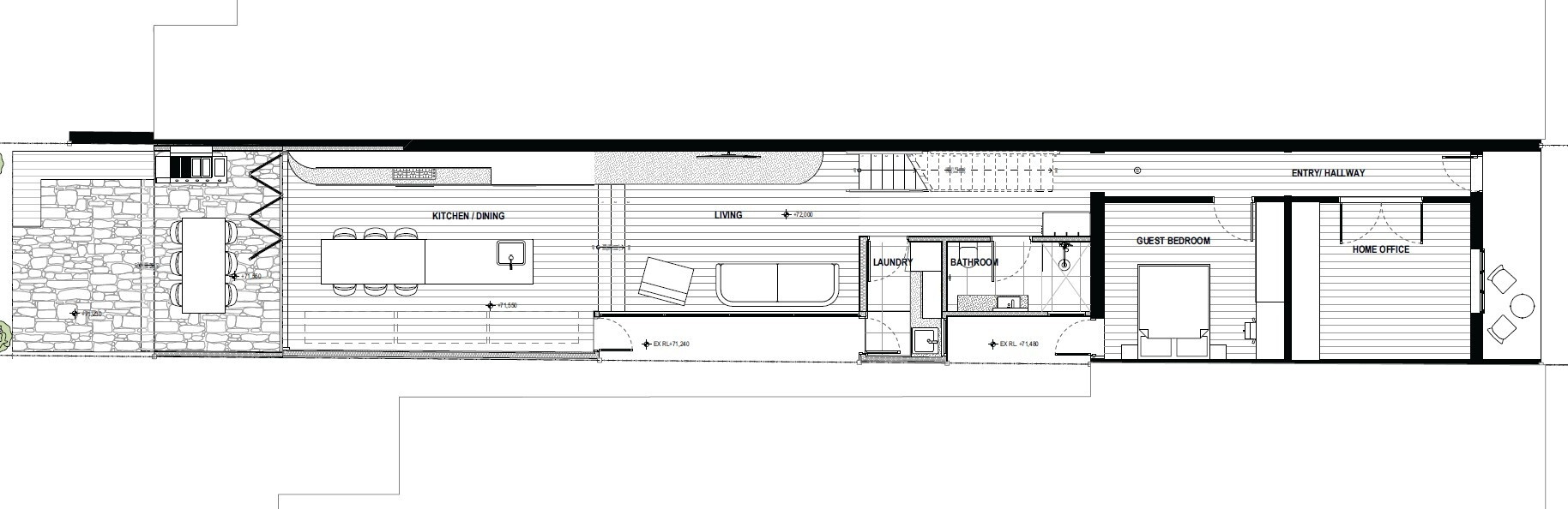
A Seamless Blend of Old and New Living

The floor plans show the shift from the original layout at the front to a more open design at the rear. The ground floor connects kitchen, dining, and living to the patio, while the upper level is arranged with bedrooms and bathrooms for privacy.

The floor plans show the shift from the original layout at the front to a more open design at the rear. The ground floor connects kitchen, dining, and living to the patio, while the upper level is arranged with bedrooms and bathrooms for privacy.

The floor plans show the shift from the original layout at the front to a more open design at the rear. The ground floor connects kitchen, dining, and living to the patio, while the upper level is arranged with bedrooms and bathrooms for privacy.

Randwick Modern brings together restoration and new construction in a way that feels clear and cohesive. The original home sets the foundation, while the addition introduces open space, light, and a modern edge.


Photographer: Louise Wellington | Architect: Sandbox Studio | Interior Design: Studio Joan Interiors | Builder: Ryan Jones Building Co