
From the street, the Victorian terrace looks much like it always has. Ornate detailing, a double fronted facade, and the quiet confidence of a period home that has stood in Melbourne for generations.
But step inside and move toward the rear, and the story changes.
Designed by Chan Architecture, this Australian home has been given a dramatic double height extension that carefully respects the character at the front while introducing a spacious, light filled contemporary addition at the back.

A Warm and Private Rear Facade
At the back of the home, the extension makes its presence known in a subtle but confident way.
The upper facade is wrapped in vertical timber battens that introduce texture and warmth to the rear elevation. The timber softens the modern form while also providing privacy to the upstairs master bedroom.
It is a practical feature, but also a visual one. The rhythm of the battens gives the extension depth and balance, ensuring the contemporary addition feels considered rather than abrupt.

Opening the Home to the Garden
Steel framed glass doors line the rear of the extension, creating a strong connection between the interior and the backyard. When open, the doors allow the living spaces to spill outside. When closed, they still draw in natural light, flooding the interior throughout the day.
In the living room, wood cabinetry and a built in bench stretch along one wall, adding both storage and a sense of crafted detail. Light wood flooring runs underfoot, keeping the space bright while adding warmth. The room feels intimate yet flexible, able to adapt depending on the weather or the occasion.


A Kitchen Designed as the Heart of the Home
At the center of the extension sits the kitchen, anchored by an island with room for seating. The island immediately establishes the kitchen as the social hub of the home. It is a place to cook, gather, and linger.
Subtle textures and fine black shadow lines add depth without overwhelming the space. These darker accents complement the steel framed doors, tying the materials together in a cohesive way.
Above, a large skylight positioned centrally over the kitchen draws natural light deep into the plan. The changing quality of light throughout the day gives the space a dynamic feel, ensuring it never looks the same twice.


Dining, Stairs and a Quiet Garden View
Adjacent to the living room is an open dining area defined by a round table and a minimalist sculptural pendant light. The circular table softens the linear elements of the architecture, creating a welcoming space for shared meals.
Nearby, steel stairs lead up to the new second floor. At the base of the stairs, a built in wood lined window seat offers a quieter moment within the open plan layout. From here, you can look out to a small side garden. It is a simple gesture, but one that brings greenery and calm into the heart of the home.


A Bold Yet Balanced Bathroom
Upstairs, a new bathroom off the master bedroom forms part of the addition. In the shower, black wall tiles create a dramatic backdrop. A recessed niche with hidden lighting brightens the dark surface, adding both function and atmosphere.
A glass shower screen allows light to move freely through the room, preventing the darker tones from feeling heavy. White tiles line the remaining walls, while white accents including the bathtub, towel rack, vanity and sinks create contrast.


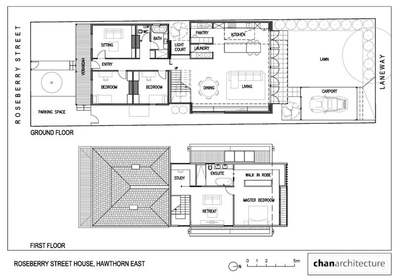
Understanding the Layout
The floor plan reveals how carefully the extension has been integrated into the existing terrace. It clearly shows the new rear addition and the layout of the second floor, illustrating how the project expands the home without compromising its original character.

By preserving the period charm at the front and introducing light, openness and carefully chosen materials at the rear, Chan Architecture has created a home that feels both grounded in history and ready for modern family life.