Moriq have designed the Amwaj Villa, a contemporary home for a family in Bahrain.
The project description from Moriq
The house was meant for a single family, situated in Amwaj, Bahrain. The plot was 690 sq mts and the total built came up to 778 sq mts/8371sft.
The owners wanted a modern, contemporary styled home with strong emphasis on interior architecture and strong interior/exterior connections.
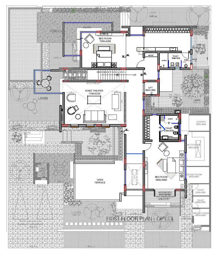
The home was planned on 3 levels with just the living levels and kitchen plus dining on the lower floor. A well equipped gym with steam and sauna were planned on the rear side. Two bedrooms with a non dedicated home theatre comprises the mid level.
Master suite with multi dress rooms and multi toilets is planned on the last level. All three levels are connected by means of a staircase and a lift.
Difference of levels and double heights perk up the interiors. Large floor to ceiling glasses connect the outside with the inside.
Specks of colours were used in furniture and artifacts only keeping the basic canvas neutral (in greys and whites). Grey white traventino were used as floors. Walls were in shades of greys and ceiling were pristine white. Distressed wallpapers were used on strategic walls.
A custom designed chimney is the centre of attraction in the dining area. A large scaled log of wood was used as the grab bar for the staircase. Skylights bring in a lot of natural light.
Old reclaimed doors as used as interior elements. Every room has visual and physical access to the outside.
Furniture is from Italian brands. Rugs and lamps are all hand picked. As mentioned earlier the emphasis was more on scale, proportions and integration rather than on decoration. The final look is simple and uncluttered both in architecture and interior.










