
On a quiet street in Glen Iris, a suburb of Melbourne, a white rendered wall stands almost silently among its neighbors. Designed by Australian architecture and interior design firm studiofour, the house does not announce itself with ornament or elaborate gesture. Instead, its front facade acts as a canvas, catching the shifting shadows and reflections of a large oak street tree.
The entry is marked by a single full height puncture in that otherwise blank facade. It is a deliberate incision. Step through it and the modest exterior gives way to a spatial experience that feels unexpectedly expansive.

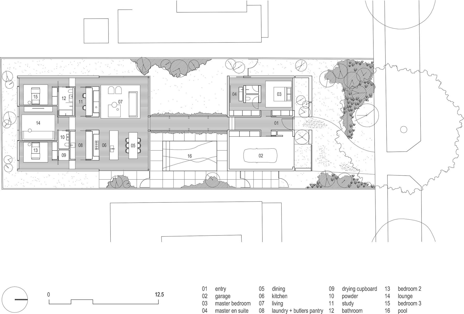
A long hallway unfolds ahead, lined with windows that draw the eye forward. This corridor is a transitional space that guides visitors through the interior garden and past the swimming pool before revealing the main areas of the home. Rather than arriving immediately at a living room, one moves through landscape first.


This sequencing reflects the project’s core idea. The house is conceived as a framing device for outdoor space, with architecture acting as a backdrop to the family’s engagement with the garden. Stripped back to white rendered planes and restrained forms, the building recedes, allowing light, greenery, and sky to take visual priority.

The main social area brings together the living room, dining room, and kitchen in an open plan arrangement. Large windows stretch across the walls, offering uninterrupted views of the garden and pool. Northern light pours in, washing over the white interior and amplifying its brightness. The effect is calm and immersive. The boundaries between indoors and outdoors feel softened, almost suspended.




Behind the kitchen, practical life continues quietly. A pantry fitted with shelving for spices, a countertop, and open drawers below keeps everyday items within reach yet out of sight. Tucked into this same zone is the laundry, designed with the same minimalist clarity that defines the rest of the home. Utility spaces are not treated as secondary but integrated seamlessly into the overall composition.


Across the hallway, concealed behind the fireplace in the living room, is a home office. Tucked neatly into an alcove and sized generously enough for two, it remains visually separate from the main living area. This balance between openness and retreat runs throughout the house. Public areas are fluid and connected to the garden, while private zones are carefully shielded from direct sight lines.

In one bedroom, the wall behind the bed is entirely glazed. Lying there, it feels as though sleep happens beneath the canopy of trees. A full wall of cabinetry provides ample storage, maintaining the pared back aesthetic without sacrificing function.

The bathroom continues the language of light and simplicity. A large window draws in daylight, reinforcing the sense of openness. A streamlined vanity and a freestanding metal towel bar underscore the restrained material palette.

The floor plan reveals how a central hallway and internal garden organize privacy, light, and movement within this compact suburban block.

Behind a plain white facade, studiofour has designed a light filled modern home built around an internal garden, balancing privacy, family life, and seamless indoor outdoor living.