The Floating House by MOS Architects

MOS Architects designed the Floating House on Lake Huron in Ontario, Canada.

fh_100714_04

fh_100714_02

fh_100714_06

fh_100714_03

fh_100714_07

fh_100714_10

Project description

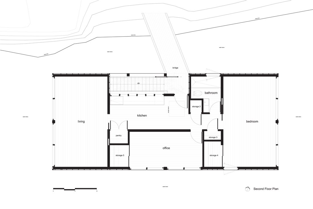
The Floating House is the intersection of a vernacular house typology with the shifting site-specific conditions of this unique place: an island on Lake Huron. The location on the Great Lakes imposed complexities to the house’s fabrication and construction, as well as its relationship to site.

Annual cyclical change related to the change of seasons, compounded with escalating global environmental trends , cause Lake Huron’s water levels to vary drastically from month-to-month, year-to-year. To adapt to this constant, dynamic change, the house floats atop a structure of steel pontoons, allowing it to fluctuate along with the lake. Locating the house on a remote island posed another set of constraints.

Using traditional construction processes would have been prohibitively expensive; the majority of costs would have been applied toward transporting building materials to the remote island. Instead, we worked with the contractor to devise a prefabrication and construction process that maximized the use of the unique character of the site: Lake Huron as a waterway. Construction materials were instead delivered to the contractor’s fabrication shop, located on the lake shore. The steel platform structure with incorporated pontoons was built first and towed to the lake outside the workshop. On the frozen lake, near the shore, the fabricators constructed the house. The structure was then towed to the site and anchored.

In total, between the various construction stages, the house traveled a total distance of approximately 80 km on the lake. The formal envelope of the house experiments with the cedar siding of the vernacular home. This familiar form not only encloses the interior living space, but also enclosed exterior space as well as open voids for direct engagement with the lake. A “rainscreen” envelope of cedar strips condense to shelter interior space and expand to either filter light entering interior spaces or screen and enclose exterior spaces giving a modulated yet singular character to the house, while performing pragmatically in reducing wind load and heat gain.

Architect: MOS Architects

Photography by Florian Holzherr