Dorrington Architects designed the Rutherford House in Taupo Tauranga/Oruatua, New Zealand.
Project description from the architects
The brief was to create a modern holiday house suitable for the hot summers of Lake Taupo and the cold winters for skiing on Mt Ruapehu.
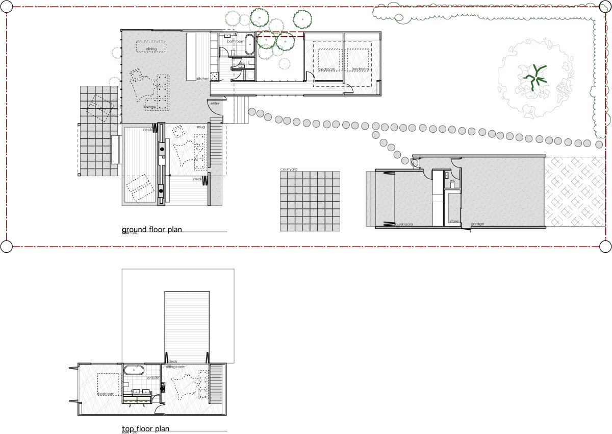
Formally the house consists of 4 main elements; (1) a concrete base, which at some points is folded up to contain interior spaces, (2 and 3) two black cedar-clad bedroom blocks, and (4) an open-plan white structured ‘veranda’.
The concrete base provides the required floor level rise, creating intermediate zones between inside and outside. Raised decks from both the living room and snug articulate elevated, and in the case of the front deck, covered outdoor spaces. The living space arrangement suits the extreme climates of the location, activities and varying degrees of privacy.
The large open-plan ‘veranda’ space comprises kitchen, lounge and dining. A snug, a step lower with an open fireplace, can on colder days be closed off from the main space. The top-floor sitting room affords a private sanctuary for the owners when entertaining family and friends.
The internal environment is managed with thermal mass floor and walls and passive ventilation to most building faces. Additional heating inside and out is provided with open fires.
Visit the Dorrington Architects website – here.
Photography by Emma-Jane Hetherington









