Designer Hristina Hristova has created a tiny vacation house on wheels to avoid the crowds and prices of beach resorts.
The designer’s description
The idea for this tiny vacation house was born out of our desire to stay away from the crowds and the concrete of the five stars beach resorts and spend time somewhere calmer and closer to nature instead.
Our limited budget as a young family kept the idea of buying a plot and building on it distant and impossible. And by doing so we were just going to be part of the concrete army invading the sea side. So we opted for making our retreat on wheels.
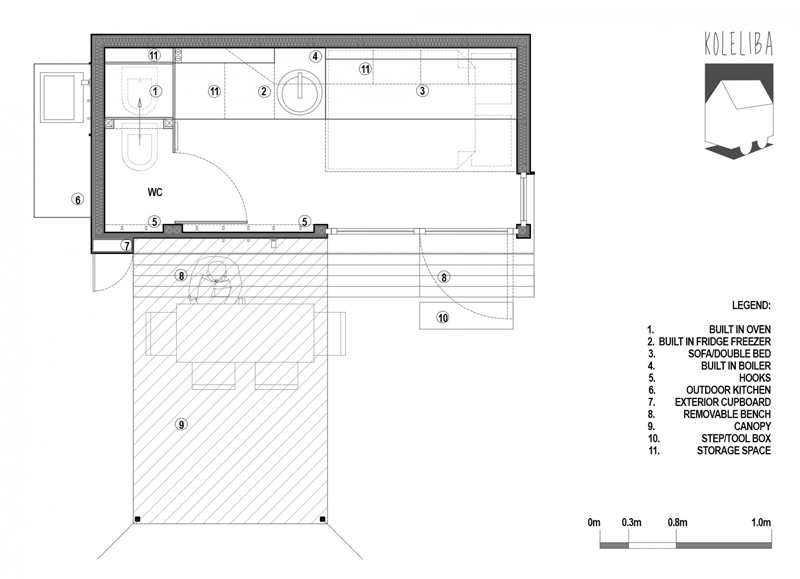
The restrictions defying the sizes of a vehicle that could freely go on the roads determined the size of our tiny home – 9 square meters. This was all we’ve got to make a functional vacation house.
The limited space was a challenge but we managed to fit everything necessary without the unpleasant claustrophobic feeling of being stuck in a narrow place full of stuff.
The standard height of 2,4m at the ridge of the roof as well as the substantial glazing made this tiny project feel more like a spacious house. The light coming from the full height windows allowed the amazing sea view to become a dominant part in the interior.
As the feel of the used materials were very important to us we chose to go with white oiled cladding and ply wood. This oil allowed the timber to breathe and kept the enchanting smell of freshly cut wood stay in the tiny house forever.
As the main goal of this project was to make us spend more time outside and make up for the murky, rainy, winter days in the office we made the exterior a natural continuation of the interior. A big bench spanning across the main facade made enough space for our dear friends coming to visit.
Under the canopy we spent long afternoons drinking chilled wine. And as the Bulgarian traditions demand often our afternoon wine turned into long dinners with sea food and light music. That’s why we added accent exterior lighting as well as white panes to better reflect the light.
Koleliba as we called this tiny vacation house ( koleliba – a made up word meaning a hut with wheels) is our response to the invading consumerism that encourages us to always want our homes bigger, better and unnecessary luxurious.
It’s a step back to a simpler life without excesses but full of free time, happy moments and friends that we often have to sacrifice in our never ending drive for asking more.












