
In Warsaw, Poland, House of Curves shows how design can shape the way a home feels from morning to night. Designed by Five Cell, the interior is built around soft lines, natural materials, and light that changes throughout the day.
The result is a calm, cohesive space that reflects both lifestyle and memory. Inspired by Mediterranean journeys, it balances simplicity with warmth, creating an environment that feels considered without being overstated.

A Living Space With Built-In Firewood Storage
The living area forms the center of daily life, where lounge seating and the open kitchen come together in one continuous space. A long, multi-functional unit integrates the firewood storage while doubling as seating.
Rounded built-in shelving niches and soft ceiling details echo the home’s curved language, while white surfaces and warm wood tones create contrast against the black fireplace.




An Open Dining Area and Kitchen
The dining room separates the kitchen from the living room. A concealed storage area keeps the space visually clean, allowing materials like the wood cabinets, and form to take focus. A shelf with a curved front creates a place to display kitchenware.




A Small Space with a Consistent Design Language
Even the smallest spaces follow the same design logic. The powder room, located on the ground floor, is shaped through soft geometry and refined finishes, maintaining continuity with the rest of the home.


A Sculptural Staircase at the Heart of the Home
At the heart of the home is a sculptural staircase that acts as both structure and focal point. Its asymmetrical form begins with a fan-shaped entry and rises as a fluid volume through the interior.
Solid wood treads, a winding balustrade, and smooth transitions into surrounding walls highlight the level of craftsmanship. Open connections to nearby spaces allow it to bring different parts of the home together, while light enhances its shifting form.








A Connected Workspace
The home office, located off a hallway, remains visually connected while still offering a sense of separation. Its placement allows it to benefit from shared light and openness.



A Calm Bedroom Defined by Soft Tones
The primary bedroom carries forward the home’s calm atmosphere through muted tones and soft forms. The design focuses on comfort and continuity rather than contrast. Materials and light work together to create a space that feels quiet and grounded.


A Sculptural Ensuite with a Curved Walk-In Shower
The ensuite bathroom is designed as a sculptural volume, where bathing areas are defined by soft lines and integrated forms. A curved walk-in shower sits within this composition, reinforcing the home’s defining motif. Integrated basins, curve-fronted shelving, and microcement finishes maintain clarity while adding softness.





A Kids Bedroom Designed with Soft Simplicity
The children’s bedroom continues the same visual language, adapted for everyday use. Soft forms, wood flooring, and a restrained palette ensure consistency across the home.

A Family Bathroom Shaped by a Cave-Like Alcove
The family bathroom is organized around a cave-like alcove that houses both the bathtub and a shower. This alcove creates depth while the textured tiles and smooth surfaces work together to reflect light, and the double vanity has a floating wood shelf accent below.





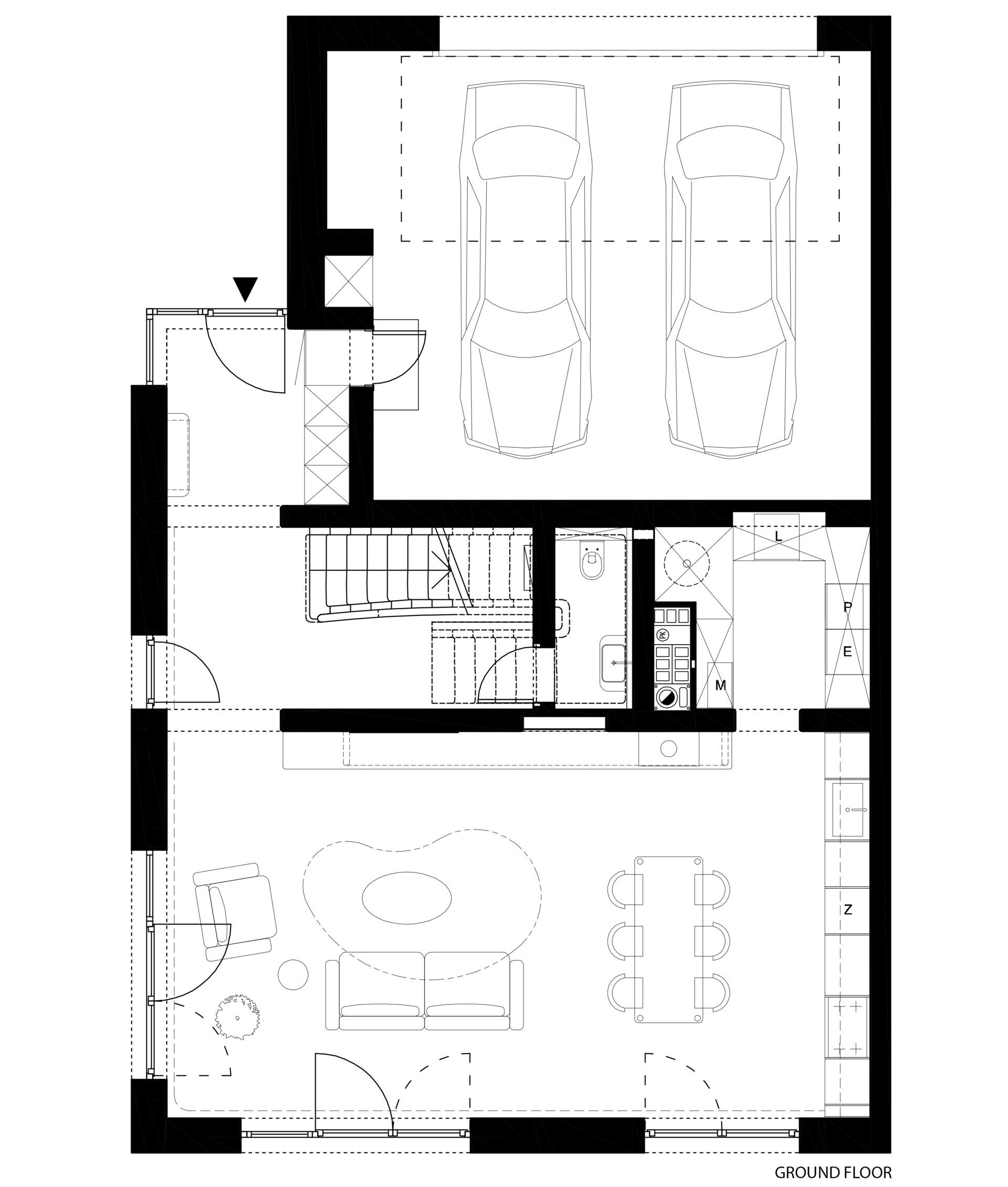
A Layout Designed for Flow
The final layout reflects a complete reworking of the original structure. Walls were adjusted, corners softened, and the staircase rebuilt to support the overall concept. This allows each space to connect more naturally, reinforcing the sense of flow that defines the home.


House of Curves stands out through consistency rather than contrast. Every decision, from structure to finish, supports a single idea carried throughout the home. It is a space shaped quietly through light, material, and form, creating an environment that feels cohesive, functional, and enduring.