
Not far from the Costa Rican town of Uvita, on a jungle covered hillside above Playa Hermosa, a house settles so quietly into its surroundings that it almost disappears. Designed by Dagmar Stepanova of Formafatal, the home was conceived as a private family retreat within the larger Art Villas resort.

The most striking gesture is overhead. A lush green roof extends the jungle canopy across the top of the 85 foot long structure, softening its geometry and visually dissolving its presence into the hillside. From certain angles, the house seems to be swallowed by vegetation.
Its exterior reinforces that sense of retreat. Clad in dark, burnt teak planks treated using the traditional Shou Sugi Ban technique, the facade facing the driveway is entirely without windows. There is no visual clue of what lies beyond. The decision was deliberate. Privacy comes first, and the house presents a quiet, almost monolithic face to the outside world.

On the opposite side, the architecture opens up completely. The 85 foot (26 meter) long elevation is lined with perforated metal screens that span nearly the entire length of the home. Each one can be lifted to reveal the rooms behind it, transforming from protective veil to generous canopy. When extended, they provide shade against the tropical sun. When lowered, their subtle perforation patterns filter light into shifting constellations across floors and walls. The metal, finished in a tone reminiscent of weathered steel, resists heat and corrosion in the humid climate.


Behind those screens, life unfolds in direct dialogue with the landscape. An infinity pool stretches along a patio that is partially covered, offering relief from the midday sun while still framing views of the jungle and distant ocean. Water and foliage meet at the horizon, reinforcing the sensation that the house floats above the hillside.




Inside, the palette turns warm and tactile. Earth tones dominate. A substantial wood dining table anchors the living space, while a suspended wood ceiling adds depth and texture overhead. The interior was conceived with a focus on natural materials and craftsmanship. In the kitchen, hidden lighting quietly highlights shelving and backsplash, allowing materials rather than fixtures to take center stage.


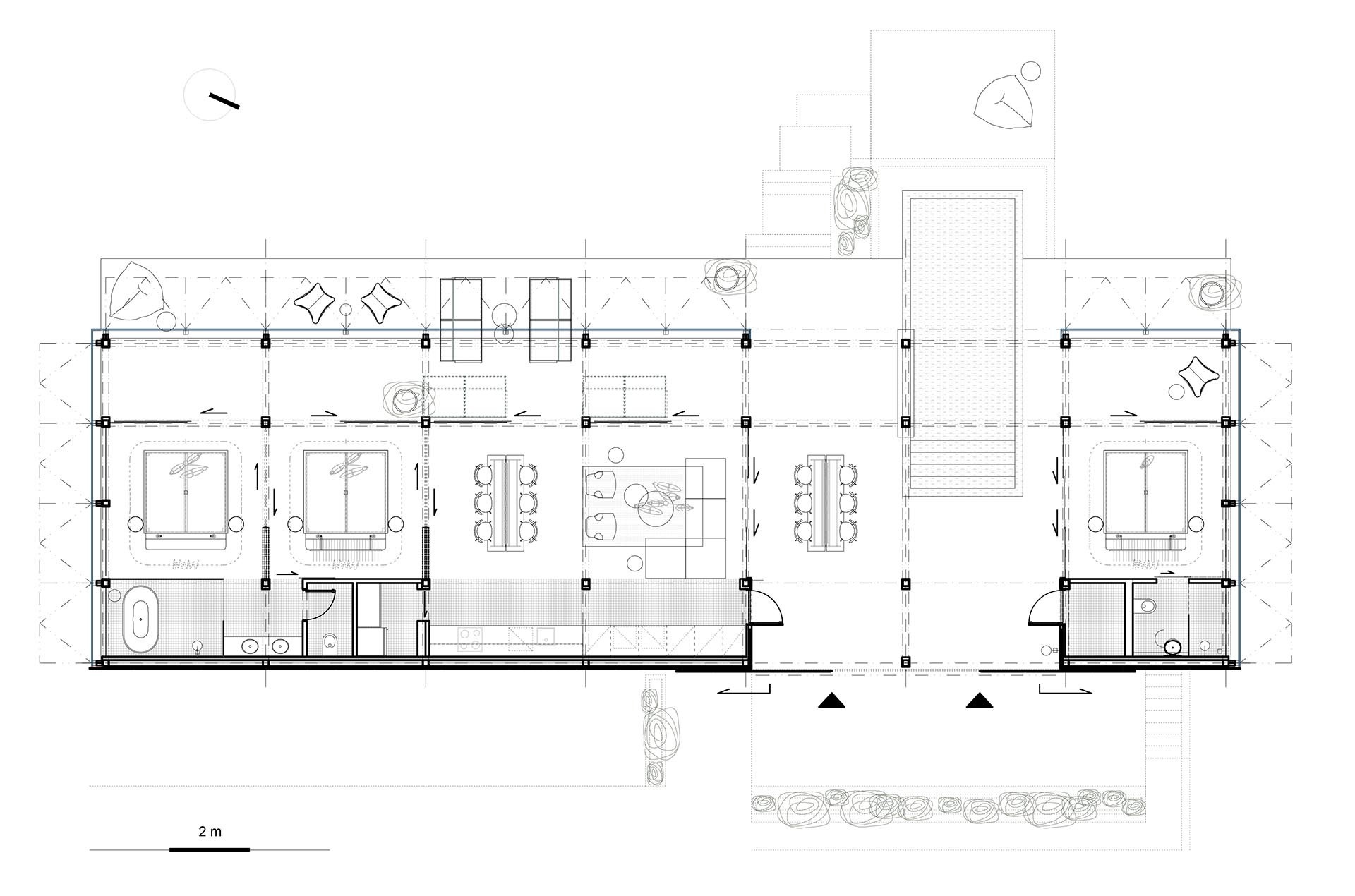
The layout unfolds in a simple linear sequence. At one end of the house sits the primary bedroom, enclosed in glass and oriented toward uninterrupted views. At the other end are two additional bedrooms, also wrapped in glass, their transparency tempered by colorful artistic screens that can be drawn closed for privacy. Between them is a shared bathroom equipped with a dual vanity, a walk in shower, and a freestanding bathtub positioned as a place of pause rather than routine.





Utility spaces, storage, bathrooms and the kitchen are organized along the solid rear wall, leaving the remainder of the interior open and fluid. Sliding partitions allow the family to recalibrate privacy as needed, but much of the home reads as a sheltered terrace. The boundaries between indoors and outdoors feel intentionally erased.


To better understand the composition, the floor plan reveals a clear, prismatic form anchored to the slope, structured on a straightforward steel frame system.

By lifting its rooms toward the view, sealing one side for privacy, and extending the forest across its roofline, this home demonstrates how architecture can recede without losing presence.