
Set along the banks of the Sázava River in Prosecnice, Czech Republic, this compact cabin by Mimosa Architects rises from the remains of what came before. After a fire destroyed the original structure, only the stone base was left behind. Instead of starting fresh, the new design builds directly on that plinth, turning it into a practical foundation.

The elevated base protects the cabin from flooding while opening up views across the river. From here, the experience is simple and direct. Slide open the river-facing shutter and the setting takes over, with water moving around rocks, birds skimming the surface, and pine trees framing the scene. The cabin becomes less about enclosure and more about what’s just outside.

The structure itself is deliberately straightforward. A lightweight wooden frame sits on top of the heavy stone plinth, creating a clear contrast between what is anchored and what feels almost temporary.

Inside, spruce panels line the walls, giving the space a consistent, warm finish. Outside, charred larch wraps the cabin in a dark, protective layer. The charring process strengthens the timber and adds durability, while also referencing the fire that destroyed the previous building. It’s a subtle link between past and present without becoming overly symbolic.

Toward the slope behind the cabin, sheet metal cladding takes over. This practical move protects the structure from water runoff, especially during heavy rain, while continuing the restrained material palette.

The exterior balances toughness with flexibility. Charred timber gives the cabin a strong, almost sealed appearance when closed, helping it resist weather and unwanted attention. But the shutters completely change that experience.


On the river-facing side, large folding shutters can be opened to reveal full-height glazing. When open, the cabin becomes transparent, with uninterrupted views stretching across the water. When closed, it turns into a compact, dark box that feels secure and self-contained. This duality allows the cabin to adapt easily. Open and exposed during the day, closed and protected when needed.



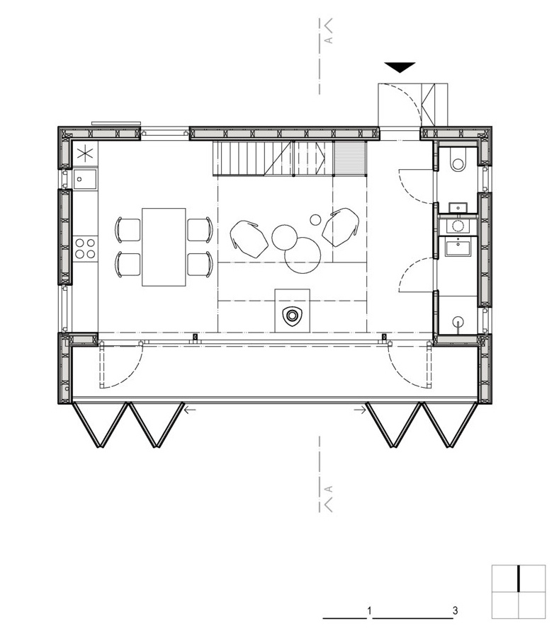
The ground floor is where everything comes together. A single, full-height space stretches from front to back, visually connecting the river to the cliffs behind.
The river-facing facade is entirely glazed, bringing in light and movement from outside. Instead of stepping directly onto the ground, the cabin extends outward into a raised terrace. This balcony-like platform enhances the sense of elevation and keeps the connection to the river uninterrupted.
The flooring, made from durable natural linoleum, allows easy movement between inside and outside. It’s a small detail that reinforces how the cabin is meant to be used, casually and without restriction.
At the center of the space, a wood stove anchors the interior. Along with black metal elements like the staircase, it echoes the exterior’s charred finish, tying the whole design together visually.





Upstairs, the layout shifts from openness to efficiency. The sleeping areas are intentionally small, tucked into the upper level just beneath the roof.
These attic-like rooms are only as large as they need to be, reinforcing the idea that most time is spent downstairs in the shared space. As you move upward, the river view gradually disappears, replaced by a new perspective of the cliffs behind the cabin.
It’s a subtle transition. The focus shifts from wide, open views to something more enclosed and vertical, reminding you how tightly the landscape is shaped in this part of the Sazava valley.




The architectural drawings reflect the same clarity as the built form. A simple stacked section shows the relationship between the solid stone base and the lightweight timber structure above. Plans highlight the openness of the ground floor and the compact nature of the upper level. There’s no excess in the layout, just a clear division between shared and private spaces.








This cabin in Prosecnice finds its strength in contrast. Heavy and light. Open and closed. Past and present. Built on what remained, it turns a loss into something functional, resilient, and quietly engaging.