
On a modest plot in Mérida, Mexico, Mexican architecture firm Workshop Diseño y Construcción designed Casa HANNAH, a compact modern home that reveals far more than its calm white exterior suggests. From the street, the house presents a restrained presence, but stepping inside reveals a layered sequence of spaces filled with greenery and light.
Although the site measures just 105 square meters, the design focuses on creating a sense of openness and comfort. By directing attention toward outdoor areas and using height and glass strategically, the home transforms a small footprint into an environment that feels airy and connected to its surroundings.


A Patio That Changes the Atmosphere
Stepping inside the home transforms the atmosphere almost immediately. Sliding glass doors open to a patio furnished with a relaxed sofa, creating an outdoor living area that feels like an extension of the interior.
The patio is surrounded by tropical plants that soften the architecture and introduce color and movement to the space. A vibrant piece of artwork mounted on the wall adds another visual layer, turning the courtyard into a place meant as much for lingering as for passing through.
Just beside the partially covered patio, a hammock hangs in the open air. Positioned to catch the sunlight, it offers a simple place to relax while enjoying the warmth of the Yucatán climate.





A Small Pool for Cooling Off
From the patio, a few steps lead down to a small swimming pool. Designed for cooling off during warm days, the pool sits quietly within the courtyard landscape.
The surrounding surfaces add texture and contrast. A stone wall introduces a rough natural element that complements the surrounding greenery, helping the outdoor area feel grounded and intimate despite its compact size. Together, the patio, pool, and plants create a calm outdoor environment that anchors the home.



A Double Height Living Space
Back inside, the interior opens upward into a double height space that immediately expands the perception of scale. The dining area sits within this vertical volume, allowing light and garden views to move freely through the center of the home.

The kitchen sits just beside the dining space, organized around thick white countertops. Graphic patterned tiles add a bold visual element, giving the compact kitchen a distinctive character.


The vertical space also draws the eye upward. A large tree visible through the courtyard becomes part of the interior experience, its branches rising toward the black framed bedroom windows above.

A Bedroom Overlooking the Courtyard
Above the kitchen, a mezzanine level holds the home’s single bedroom. Positioned to overlook the double height dining area, the room takes advantage of the tall window that frames views toward the surrounding greenery.
Inside the bedroom, a small glass door opens to a tiny planted area. This pocket of greenery sits beside the ensuite bathroom and introduces fresh air and natural light into the upper level.
At night, indirect lighting softens the space and creates a gentle glow that emphasizes the calm, intimate atmosphere of the room.




A Bathroom That Continues the Design Language
The en suite bathroom continues the visual language established in the kitchen. The same graphic tiles appear again, this time forming a partition that separates the shower from the vanity area.
Repeating the material helps tie the small home together, allowing different rooms to feel connected while still maintaining their own character.

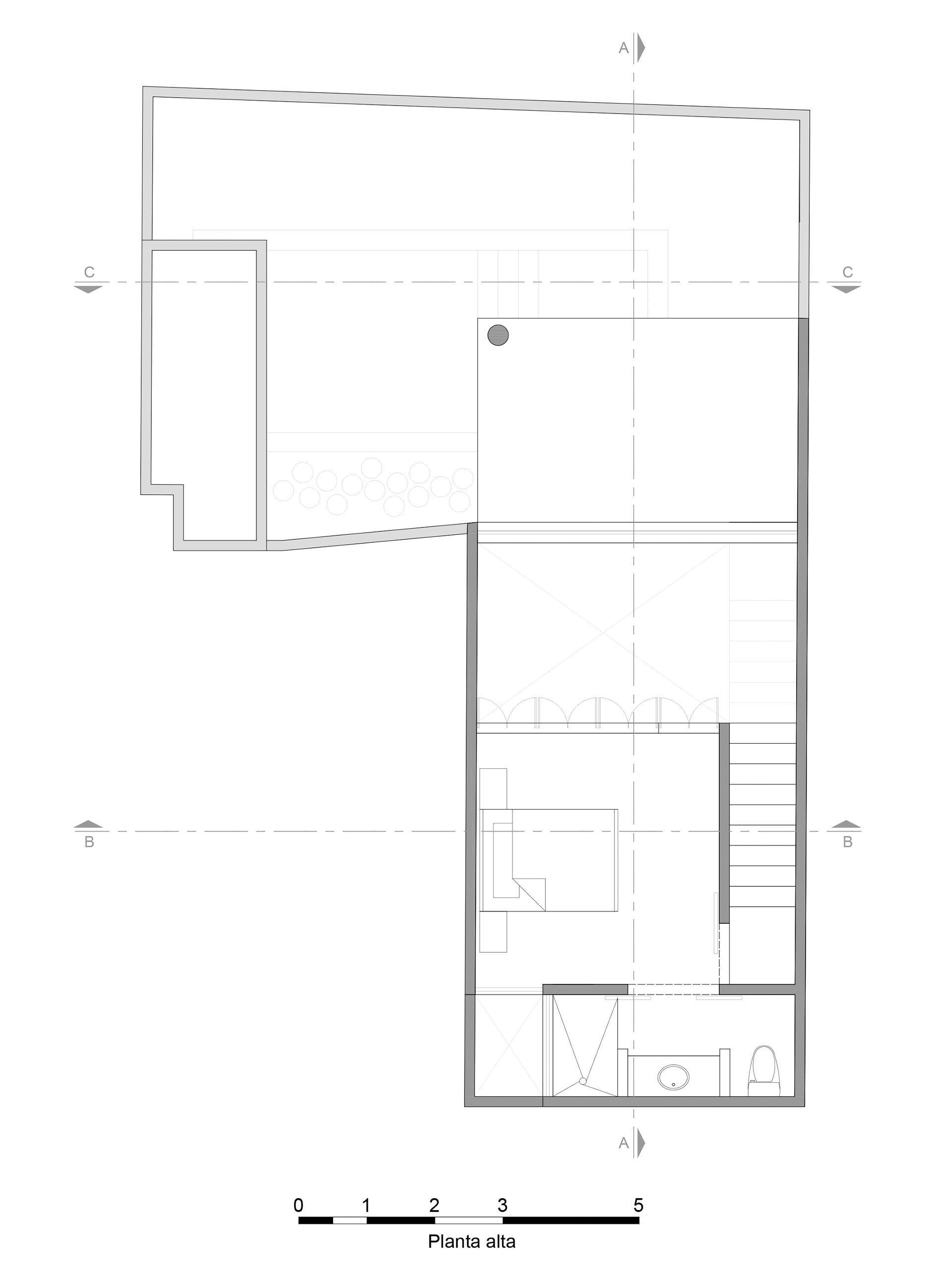
A Compact Home Designed to Feel Spacious
The floor plan of the 1,130 square foot (105 square meter) home reveals how the compact layout is organized around the central patio and vertical living space. Each area connects visually to the outdoors, reinforcing the idea that the house expands beyond its walls.


Behind its simple white exterior, Casa HANNAH quietly unfolds into a layered home where patios, plants, and vertical space create a surprising sense of openness within a compact footprint.