
Studiofour has renovated an existing Federation home in Australia with a design that brings the original structure and new addition together as one continuous experience. Instead of separating old and new, the project draws from the home’s original craftsmanship and patterns, using them to shape everything from form to material choices. The result is a house where each space feels open, filled with light, and visually linked from front to back.

Preserving the Street Presence
From the outside, the original front of the house remains intact. Its familiar Federation character sets the tone, offering a clear connection to the home’s history before anything new unfolds behind it.

A Light-Filled Entry With Subtle Updates
Inside, the entry hallway introduces a quieter, updated palette. Minimalist lighting and wood flooring refresh the space while still respecting the home’s original details.

A Sitting Room Framed by Original Details
The front sitting room highlights key features of the original home. Stained glass bay windows filter natural light, while a brick fireplace with built-in firewood storage and bookshelves creates a practical focal point.



A Dining Room That Mirrors the Past
On the other side of the fireplace, the dining room continues the story. A built-in bench sits beneath another stained glass bay window, reinforcing the visual language of the front spaces.



A Private Corner in the Primary Bedroom
Back along the hallway, the primary bedroom includes direct access to a small private garden. This adds a quiet outdoor connection without stepping away from the overall layout.




A Bathroom That References the Original Home
In the en-suite, stained glass appears again. It acts as a visual link to the earlier rooms, tying the newer spaces back to the home’s origins.

Opening Up to a Connected Living Space
At the end of the hallway, the home opens into a combined living, dining, and kitchen area. This space stretches across both the original structure and the addition, allowing light and air to move freely throughout.

A Minimal Kitchen With Hidden Functionality
The kitchen keeps a minimalist look, while practical spaces are tucked out of sight. A mudroom and laundry sit behind it on one side, while a pantry and prep area are positioned on the other, keeping the main area uncluttered.




Indoor-Outdoor Living Made Easy
Sliding glass doors extend the living area out to a patio and backyard. This creates an easy connection between indoor and outdoor spaces, making the most of natural light and fresh air.

A Bold Exterior Contrast
The new addition is wrapped in black metal siding, offering a sharp contrast to the bright interior and green lawn. This shift in material gives the extension its own identity while still linking back through shared details.


A Living Room Focused on Warmth
Back inside, the living room is kept simple, with attention centered on the fireplace. Built-in firewood storage adds both function and texture to the space.





Upstairs Spaces Designed for Light
Upstairs, two bedrooms include desks placed along the windows. This layout makes the most of natural light and provides clear views of the yard below.

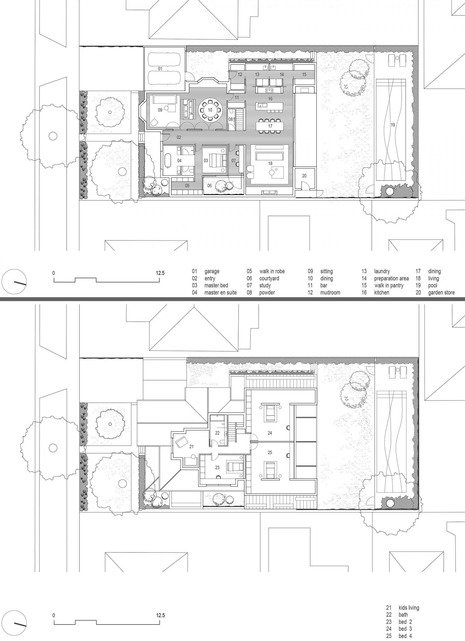
A Look at the Design Process
Architectural drawings reveal how the home was planned, showing the relationship between the original structure and the new addition, and how each space connects.


This Federation home remodel by Studiofour offers a fresh approach to extending a heritage property. By drawing from existing details and applying them across the entire design, the home feels unified from front to back. Each space connects visually and functionally, creating a house that feels open, bright, and easy to move through.