
Set on a quiet peninsula in Muskoka, Canada, Long Lake Cottage by Dubbeldam Architecture + Design rises gently into the trees, shaped by a year of camping, observation, and patience. Designed for an urban couple who wanted something immersed in nature, the home balances privacy, accessibility, and shared space across two carefully arranged levels. From the very beginning, the goal was clear, create a place that feels open to the landscape while still working for gatherings across generations.


Lifted Into the Landscape
The cottage sits below a ridge of exposed bedrock, keeping its lower level hidden on approach. Arrival happens across a slender bridge that leads directly into the upper floor, giving the impression that the home hovers lightly above the forest floor.


Clad in greyed cedar and charcoal-stained spruce, the exterior blends into the surrounding trees. The palette keeps the building quiet against its setting, while the structure itself stretches along the peninsula to capture views of water on three sides. Built entirely off-grid and powered by solar, the home relies on locally sourced wood, reinforcing a direct connection to its environment.



Grounded Entry
Inside, the foyer introduces a mix of warm wood and cool stone. Large-format tiles reference the nearby rock formations, anchoring the space in its setting. It’s a simple transition point, but one that immediately ties the interior to what lies just outside.

Living Among the Trees
The main living space unfolds upstairs, where it opens fully to the surrounding forest. Wrap-around windows and sliding doors frame views through the trees, with light shifting throughout the day.

At the center, a cast concrete fireplace anchors the room, surrounded by generous seating. A long built-in window bench stretches beneath the glazing, doubling as storage and a relaxed place to sit. The open plan layout keeps the kitchen, dining, and living areas connected, with every path leading toward a view.
Overhead, continuous western hemlock boards soften the acoustics and add texture, while the lighter oak flooring keeps the space feeling open and warm.


Outdoor Living, Elevated
Just beyond the living area, the upper deck extends the space outward. With exposure to the west and south, it captures sunlight and long views across the lake.
Retractable screens allow it to be used comfortably through changing seasons, while an outdoor wood-burning fireplace mirrors the one inside. It becomes an extension of the living room, only with open air and treetop views.


Warm and Functional
The kitchen sits quietly within the open plan, defined by a long island with seating and a secondary sink. White oak cabinetry pairs with stone counters and a matching backsplash, keeping the palette consistent.
It’s practical without drawing too much attention, allowing the surrounding views and materials to take the lead.


A Shift Between Levels
The staircase connects the elevated living areas to the more private lower level. Natural light filters through, maintaining a visual link to the outdoors even while moving between floors.

A Hidden Corner
Tucked beneath the stairs, a small sitting area offers a softer, more playful space. With seating and views to the forest, it works as a quiet corner for reading or a relaxed hideaway for kids.

Quiet and Private
Below, the atmosphere shifts. Five bedrooms line the hallway, each opening directly outside through floor-to-ceiling windows and private entrances. Natural light moves easily through the space, highlighting oak floors and hemlock wall cladding.
At the end of the corridor, a view of the lake pulls everything outward again.

Opening to the Outdoors
The primary bedroom faces west, opening fully to the outdoors. In the evening, light filters through the trees, bringing a softer atmosphere into the space.
The ensuite extends this idea further, with direct access outside to an outdoor shower. It’s a simple gesture that nods to the couple’s early camping experiences on the site.


Space for Everyone
Each guest bedroom has its own connection to the forest, with private access and large windows. This setup allows visitors to move independently while still feeling part of the wider home. An additional accessible bedroom on the upper level ensures that the layout works comfortably for all ages.

Cool and Sheltered
Beneath the upper level, the lower deck sits closer to the ground, shaded by the structure above and cooled by nearby bedrock. A pair of teak swings creates a relaxed seating area, positioned for quiet conversation.

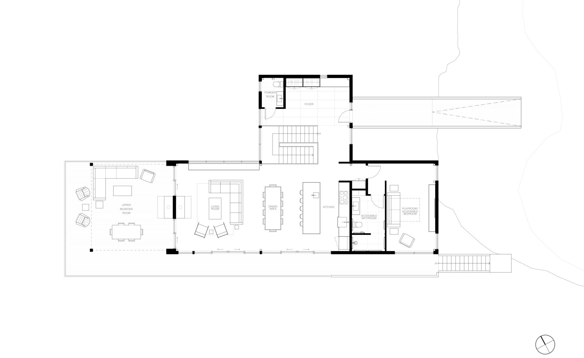
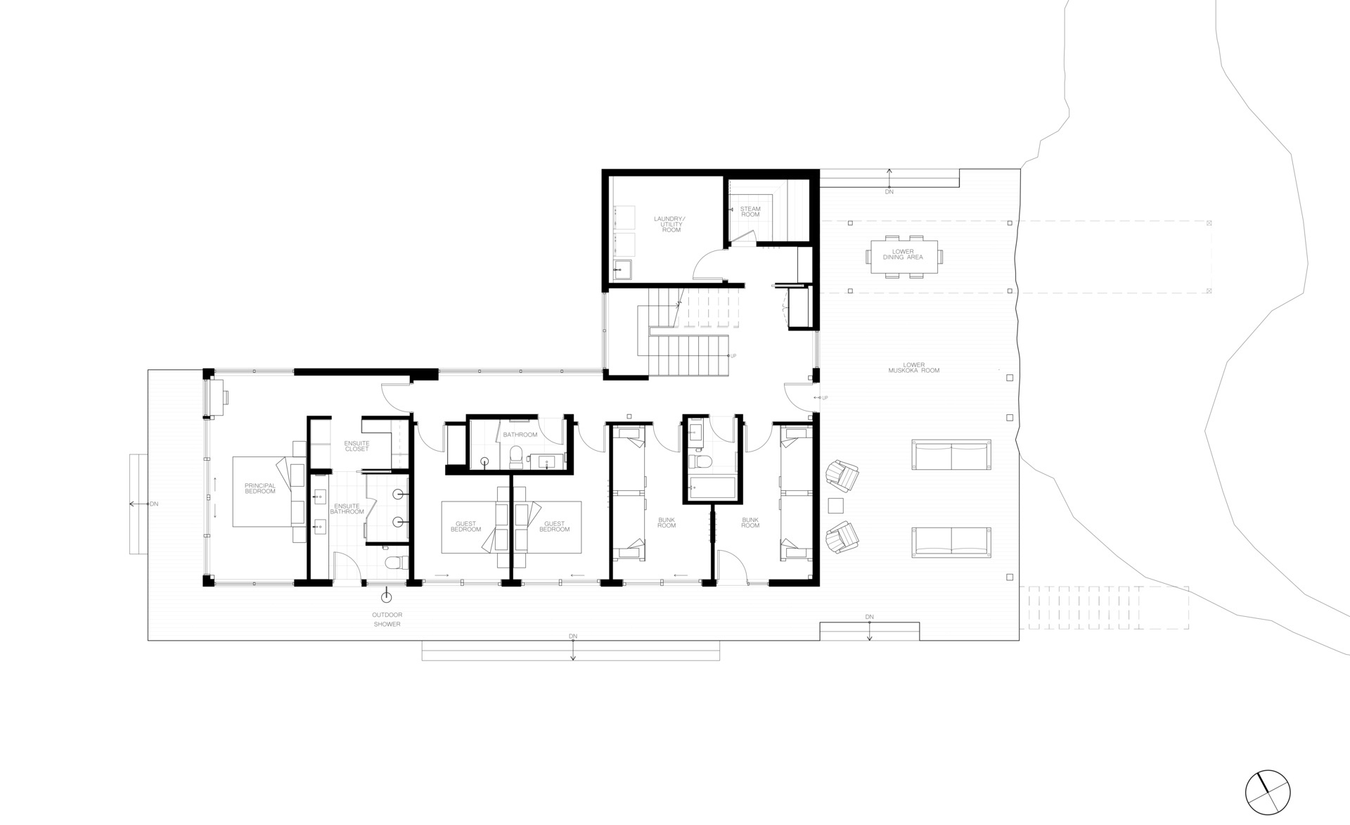
Architectural Drawings
Take a look at the architectural drawings to fully understand the layout and design.








Long Lake Cottage brings together elevated living spaces, grounded materials, and a layout shaped by both landscape and lifestyle. By placing shared areas above and private rooms below, the design opens the home to views while keeping a strong connection to the forest floor.