
Perched above Lake Ontario on the Scarborough Bluffs, the House of Monitors by Williamson Williamson (WWInc.) was designed to reveal how it is built over time. Light, structure, and carefully calibrated space make the construction legible, turning sectional thinking into lived experience. Developed closely with its owners and shaped by complex ground conditions, light becomes the organizing force that guides how rooms connect, materials meet, and the house settles into its sensitive site.
The site sits on a 300-foot-high engineered escarpment shaped by erosion, prompting a restrained footprint and carefully positioned massing that respects neighboring homes and the bluff edge.
Concrete volumes rise from the sandy soils, acting as inhabitable shoring that forms both the structure and spatial framework while limiting disturbance to the escarpment. Above, a wood volume cantilevers toward the street and the lake, where sectional cuts create depth, cross-views, and a controlled flow of daylight. Movable wooden screens further shape the modern exterior, balancing openness with privacy.

Entry occurs beneath the front cantilever, compressing the experience before opening inward. A reeded glass door brings daylight into the entry while maintaining privacy along the closely spaced street.
Concrete anchors the service core here, performing as structure, shoring, and thermal mass. Wood millwork lines circulation and primary rooms, establishing a tactile contrast to the raw concrete.

The living room opens west toward the lake, framed by millwork cabinets along the wall which house a custom vinyl record storage unit, while a window aligns precisely with the acoustic ceiling, reinforcing the sense that every element has been carefully measured.


The kitchen sits within the concrete framework, unified with the living room by a Douglas Fir ceiling. Oak millwork reinforces the continuity between spaces while remaining clearly inserted into the structural shell. From here, views extend south toward Lake Ontario, with light shaping both movement and pause within the room.


Stepping out from the kitchen, the rear deck sits beneath the cantilever above. Looking south, the lake opens up beyond the edge of the bluff.
Looking back toward the house, subtractions carved from the wood volume reveal layered interior and exterior spaces. The rear facade faces south, pairing open views with shaded decks that respond to changing light conditions throughout the day.



Back inside, the dining room is defined by a soaring 26-foot-tall ceiling. A south-facing light monitor draws daylight down through the volume, creating height without increasing floor area. Here, the white monitor contrasts with the surrounding wood-lined circulation. The space feels generous not because of size, but because of how light occupies it.

Near the entry, the powder room is compact but deliberate. A custom stone vanity and sink anchor the space, reinforcing the project’s emphasis on durability and material clarity.

The stair flanks the central service zone, acting as both circulation and connector. Above, the stair participates in the vertical sequence created by the light monitors, tying together spaces above and below.



On the second floor, the exterior deck includes both covered and open areas. It looks out toward Lake Ontario while remaining connected to the spaces beneath and above.

At the center of the house is the painting studio, developed collaboratively with the owner through iterative studies and virtual light simulations. A north-facing operable clerestory and a radiused ceiling produce even, controlled daylight. The studio becomes both a workspace and a light engine, influencing the atmosphere of the entire house.

The primary bedroom, with a wood-line ceiling, faces the lake, opening to expansive views of Lake Ontario. It connects directly to the second-floor deck, sharing light, air, and sky.

The guest bedroom is compact, with a sitting area tucked beneath a pyramidal ceiling. The geometry creates a sense of enclosure while maintaining visual interest.

The guest bathroom is lined with forest green Japanese tile. The material choice brings depth and contrast into a small, controlled space.

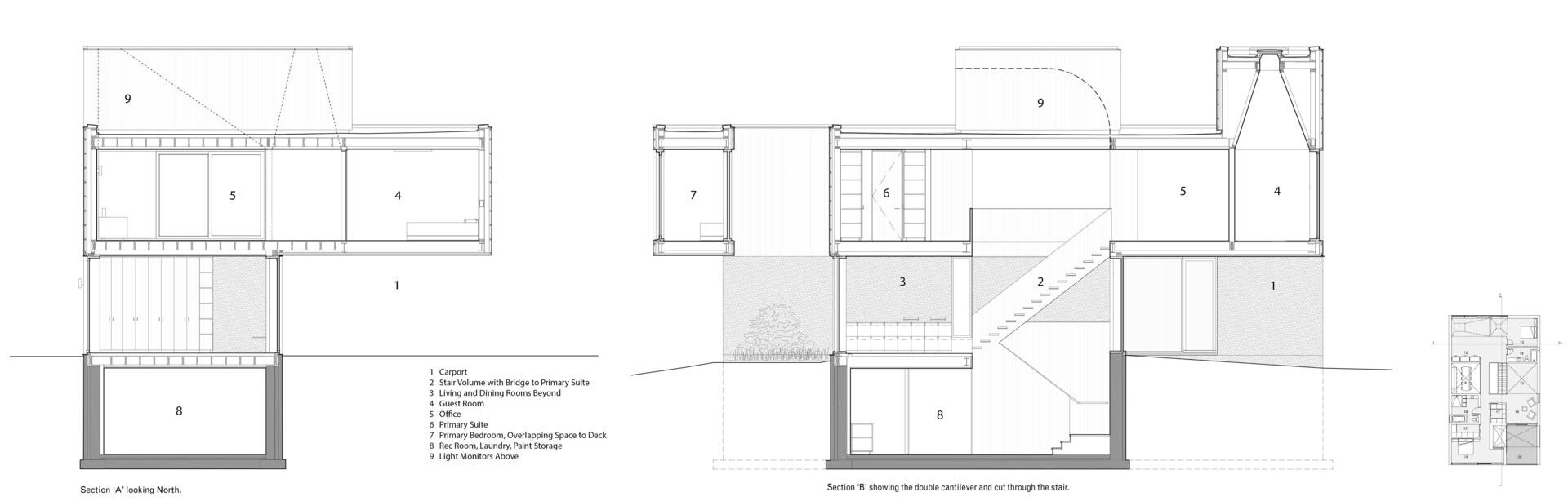
The drawings reveal the full extent of the site, stretching from the tableland down the bluff to Lake Ontario.




Perched above Lake Ontario, the House of Monitors uses light, structure, and sectional design to shape a restrained home on the edge of the bluffs.