This Small Apartment Has Plenty Of Hidden Design Elements

Tsai Design have transformed a small 376 square foot one bedroom apartment (35m2) in Melbourne, Australia, into a livable and functioning space, that can also operate as a home office space. #SmallApartment #LivingRoom #InteriorDesign #ModernApartment

Photography by Tess Kelly

 

Tsai Design have transformed a small one bedroom apartment in Melbourne, Australia, into a livable and functioning space.

 

Upon entering the small apartment, there’s a custom designed wall unit that features a flexible pegboard wall, creating a place to hang jackets, keep umbrellas and store shoes. The other half of the pegboard wall has fixed dowels for wine bottle storage.

Upon entering this modern and small apartment, there's a custom designed wall unit that features a flexible pegboard wall, creating a place to hang jackets, keep umbrellas and store shoes. The other half of the pegboard wall has fixed dowels to create wine storage. #Entryway #Storage #ShoeStorage #UmbrellaStand #WineStorage

Photography by Tess Kelly

The entryway opens up to the living room, where there’s a window seat surrounded by shelving and cabinetry. Subtle silvery blue woven vinyl flooring gives the apartment a contemporary reference to the traditional tatami straw flooring and brings a softness to the space.


In this small apartment, the living room features a built-in window seat with shelving and enclosed storage. #LivingRoom #WindowSeat #SmallApartment

Photography by Tess Kelly

When not in use, the TV is concealed behind cabinet doors.


When not in use, the TV in this modern and small apartment, is concealed behind cabinet doors. #HiddenTV #LivingRoom

Photography by Tess Kelly

The living room also doubles as a home office / study, with the desk, computers, and lighting, hidden behind cabinet doors when not in use.


The living room in this modern apartment also doubles as a home office / study, with the desk, computers, and lighting, hidden behind cabinet doors when not in use. #ModernApartment #ModernHomeOffice #SmallLivingRoom #HomeOffice

Photography by Tess Kelly

A sliding door, with a whiteboard on one side, can be closed to hide the bedroom from view. The door has been constructed from a translucent polycarbonate panel, to allow light from the bedroom to pass through.


In this small apartment, a sliding door with a whiteboard on one side, can be closed to hide the bedroom from view. #Whiteboard #WhiteboardDoor #HomeOffice

Photography by Tess Kelly

A narrow cavity between the kitchen shelves and the wall hides the dining table. It slides out via a sliding door mechanism, and the table then folds down, creating a light floating effect to the table top. The dining chairs are also fold away, minimizing space waste from furniture.


In this small modern apartment, a narrow cavity between the kitchen shelves and the wall hides the fold-out dining table. #DiningTable #SmallApartment

Photography by Tess Kelly

The kitchen, surrounded by wood, is 13 feet long, with the fridge and a washing machine hidden within the kitchen cupboards. Black has been used to contrast the wood, from the matte black countertop, to black sink and taps, and kitchen utensils.

Opposite the main cabinetry of the kitchen is a wall with further cabinets and open shelves. The cabinets provide much needed storage and a place to keep electrical appliances such as the toaster, coffee machine and rice cooker permanently sit.

Above the lower cabinets are open shelves with hidden lighting, that are used for storing glassware, and on the very top shelf, a space dedicated to a whiskey bottle collection.


This modern and small kitchen, surrounded by wood, is 13 feet long, with the fridge and a washing machine hidden within the kitchen cupboards. Black has been used to contrast the wood, from the matte black countertop, to black sink and taps, and kitchen utensils. #WoodKitchen #WoodAndBlackKitchen #ModernKitchen #KitchenDesign

Photography by Tess Kelly

At the end of the kitchen and to maximize the benefit of a north facing window in the bathroom, the wall between the bathroom and kitchen was demolished and an internal window was installed. A switchable film has been applied to the internal window, allowing the glass to become frosted to provide privacy to the bathroom at the press of a button.


A switchable film has been applied to an internal window in this modern apartment, allowing the glass to become frosted to provide privacy to the bathroom at the press of a button. #Window #SwitchableFilm #FrostedWindow

Photography by Tess Kelly

The wood that’s featured in the kitchen, also forms the backdrop in the minimalist bedroom. The timber wall cladding becomes the headboard, with a small cut-out revealing a small wall panel that folds down to form the bedside table. At the end of the wall panel is a concealed door that leads to the bathroom, with only the leather door pull to indicate something more beyond.


This modern and minimalist bedroom features wood accent wall that becomes the headboard, with a small cut-out revealing a small wall panel that folds down to form the bedside table. #ModernBedroom #WoodAccentWall

Photography by Tess Kelly

The timber look is even continued to the bathroom, with timber texture porcelain tiles covering the floor and walls. A green wall, that can be seen from the kitchen, creates an outdoor environment. A fold-out clothes drying line is hidden away from view within the wooden wall.


This small and modern bathroom features timber-look porcelain tiles, a green wall, and a fold-down clothes drying rack. #SmallBathroom #BathroomDesign

Photography by Tess Kelly

A glass shower wall separates the shower from the rest of the bathroom, while the frosted window between the bathroom and the kitchen can also be seen.


A glass shower wall separates the shower from the rest of the bathroom, while a frosted window between the bathroom and the kitchen can also be seen. #ModernBathroom #BathroomDesign

Photography by Tess Kelly

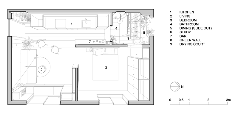
Here’s the floor plan that shows the various hidden elements within the apartment.


Tsai Design have transformed a small 376 square foot one bedroom apartment in Melbourne, Australia, into a livable and functioning space, that can also operate as a home office space. #FloorPlan #SmallApartment #TinyLiving

Joinery: Timber Dimensions