
A timber log cottage located in Strazne, Czech Republic, once buried under layers of additions has been reborn. Mimosa Architects focused on restoring its spirit rather than chasing historic detail, creating a home that feels authentic and intimate. With multiple bedrooms and living spaces scaled according to original beams, the cottage reconnects people, craft, and nature while offering comfort in a mountain setting.

Steep Roofs, Stone, and Timber Form
The cottage follows Krkonose traditions with steep, asymmetrical roofs, stone plinths, and timber-clad gables. Hayloft dormers shelter a porch, and the tripartite layout recalls the original house’s form. Operable and frameless glazing preserves the rhythm of the traditional structure while opening views to the surrounding landscape.
The design avoids historical imitation, instead emphasizing authentic proportions. Surviving beams set room heights, keeping the home enclosed, safe, and intimate.







Warm Light Shapes the Cottage at Night
At night, the mountain cottage takes on a warm presence in the landscape. Light spills softly from the windows, highlighting timber beams and casting a gentle glow on the stone plinths. From the slope above, the home appears inviting and alive, a quiet beacon against the dark ridge lines, blending tradition with a sense of warmth and hospitality.




A Sheltered Welcome and Hidden Storage
The entry opens to a small, sheltered porch beneath the roof, with stone plinths grounding the timber structure. Adjacent storage and technical spaces accommodate laundry, pantry, mountain equipment, and a combined dog/bike washroom without interfering with the main volume.

The Heart of the Cottage
At the heart of the home, the main living room retains the scale dictated by an original beam ceiling. Built-in seating runs along the windows, and a large table anchors the space for meals and gatherings. Nearby, the kitchen with its dark cabinetry, almost blends into the background.




Intimate Ground-Floor Comfort
A guest bedroom sits on the ground floor within the original volume. Its modest size maintains intimacy, while proportions respect the surviving structure.

Connecting Levels with Respect for Structure
The wood staircase with black metal railing links the ground floor to the attic without disrupting the traditional layout. Its insertion respects the surviving structure while providing clear access to upper-level rooms.



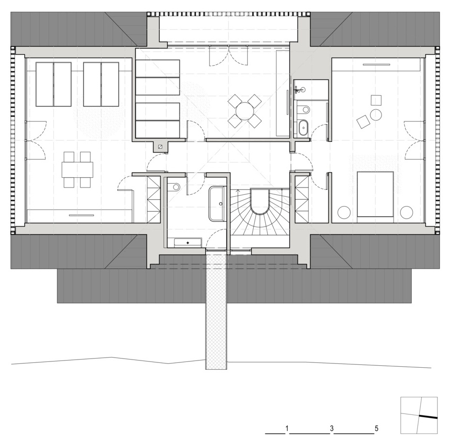
Gable Rooms with Panoramic Views
The attic space opens generously, echoing traditional loft interiors. Gable rooms offer expansive views of surrounding ridges. The design maximizes natural light while maintaining proportions set by the original beams, creating comfortable open spaces.




Functional Spaces with Quiet Comfort
The main bathrooms in the home have glossy off-white tiles wrapping the walls, while one has a freestanding bathtub, and another has simple glass shower. Dark wood accents and exposed beams warm up the vaulted ceiling.




A compact powder room packs in a lot of personality, pairing cool blue-gray tile with a softly textured plaster wall above. The sculptural wall sconce feels like modern jewelry, casting bright, focused light that makes quick handwashing and touch-ups easy.

Clean lines and warm wood turn define the sauna zone. A glass wall reveals the pale, steamy interior, while the slatted wood mat underfoot adds softness. To the right, glossy tile wraps a gentle curve around the shower, paired with a simple hand sprayer. The light ceiling panels and small downlights keep everything bright and calm.

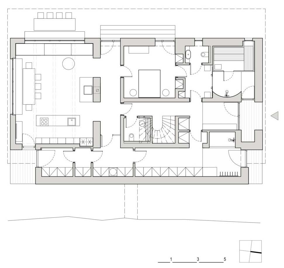
Plans That Honor Tradition and Proportion
Plans reflect traditional proportions with modern requirements. Exposed beams, roof angles, and functional inserts are carefully documented to maintain continuity with the home’s heritage.







Today, the cottage provides comfortable accommodation for family and friends. Its technical systems are unobtrusive: heating and hot water come from a ground-source heat pump with a geothermal borehole, water from a nearby spring, and wastewater is treated on-site. The home reconnects with craftsmanship, tradition, and the surrounding mountains while offering functional, modern living.