
Designed by HofmanDujardin in Tonden, The Netherlands, Villa Tonden was created for clients looking to step away from the pace and pressure of city life, with its wood-clad form carefully shaped to sit gently within a clearing in the pine woods and offer a calm, grounded escape surrounded entirely by nature.

Surrounded by tall pines, the wood-clad house is composed of three archetypical house-shaped volumes. The familiar gabled forms soften the villa’s presence in the landscape, helping it feel more like a cluster of cabins than a single imposing structure. Together, the volumes create distinct outdoor pockets around the house, with facades that embrace terraces overlooking the surrounding fields and woodland.

Large black-framed sliding glass doors play a central role in the design. They stretch across the façades, connecting the interior spaces to east and west-facing terraces. When opened, they dissolve the boundary between indoors and out, allowing the scent of pine and the changing light to filter through. Even when closed, every room maintains a strong visual relationship with the surrounding nature.


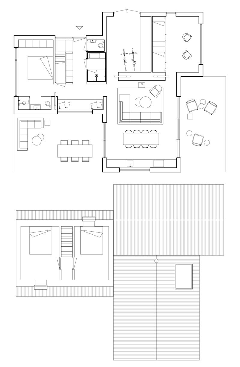
Inside, the minimalist kitchen, dining area, and living room unfold within one shared space. Openings oriented in three directions allow the living room to follow the sun throughout the day, shifting in atmosphere from bright morning light to warm evening glow. Above, the timber roof structure has been left exposed, emphasizing the height of the room and adding warmth to the pared-back interior.


Located just off the social areas is the children’s bedroom, where built-in bunk beds lined with wood create snug sleeping nooks. Positioned in front of a large window, the beds overlook the woods, giving children a direct view of birds and deer from the comfort of their own corners.

A hallway off the entryway leads toward the primary bedroom, and here a built-in window seat sits beside a generous picture window. It doubles as a quiet reading spot, reinforcing the idea that this is a home designed for slowing down.

In the primary bedroom, another floor-to-ceiling picture window frames uninterrupted views of the surrounding trees. The space also includes a private bathroom, where the shower is enclosed by a frosted screen, offering privacy while still allowing light to filter through.

Up above, two additional guest bedrooms are tucked away in the attic. Each features a skylight positioned for watching the stars and treetops at night.

Set among pine trees and open fields, Villa Tonden is a place where architecture and landscape work hand in hand.