
In inner-city Melbourne, Australia, Austin Maynard Architects designed a home that doesn’t reveal much at first glance. From the street, it reads as a simple gable-front form. Clean, compact, and quiet. But this is the Garden House, a project shaped by a clear brief, create a super modern, high-performing, sustainable family home that can adapt over time.
That contrast between what you see and what’s actually there becomes one of the most interesting parts of the design.

A Laneway Entry That Builds Curiosity
The approach to the home is anything but typical. Instead of a direct front door moment, access happens via a pedestrian laneway that runs alongside the garage. It slowly leads you inward, away from the street and toward the main living spaces.

A White Shingled Form That Stands Out
From the outside, the home presents itself as a white, shingled cottage with a sharply pitched roof. The use of Flat Lock metal shingles gives the facade texture and a distinct identity without relying on bold color.


Shading That’s Built Into the Design
Metal awnings extend out from the structure, adding another layer to the exterior. They’re not just visual features, they help control sunlight and reduce heat inside.

A House Shaped by Its Garden
The Garden House lives up to its name. Established trees and planting wrap around the home, many of them retained from the original site. Instead of clearing everything, the design works with what was already there.
Outdoor areas unfold in different ways. There’s a fire pit with a curved bench, a pool, courtyards, alfresco dining zones, pergolas, and decks. Each space offers a different way to use the garden, depending on the time of day or the number of people around.



Breaking the Home Into Connected Zones
Rather than one large structure, the house is divided into separate zones. These are linked by mirrored glass corridors that reflect the surrounding greenery, making the connections almost disappear.
This approach keeps the scale feeling manageable while still allowing the home to handle larger gatherings. It also creates a sense that the house is spread through the garden, not sitting on top of it.

Recycled Brick With Personal Meaning
Recycled yellow brick appears throughout the home, adding warmth and texture. Beyond aesthetics, it carries meaning for the owners, referencing memories of their grandparents’ homes and time spent at Melbourne University. It’s a material choice that brings history into a modern setting without feeling nostalgic.


A Living Room That Balances Simplicity and Detail
Inside, the living room is anchored by a large sofa and abstract artwork. Above, a white slatted ceiling introduces a subtle layer of detail that ties into the overall palette.
Behind the sofa, a small home office is tucked into a closet. It’s easy to access when needed and just as easy to close away.
Nearby, a large window keeps the garden in constant view, reinforcing the connection between inside and out.




A Kitchen That Reflects Its Surroundings
The kitchen continues the clean approach with hardware-free cabinetry running along the wall. A black island and open shelving add contrast, while a mirrored backsplash reflects the living space behind it.
A black-framed glass door leads directly to the garden, keeping movement between spaces simple and direct.



Dining Spaces That Feel Integrated
Wood cabinetry flows from the kitchen into the dining area, forming a built-in niche with shelving. Set into a brick wall nearby, a small window seat creates a quiet spot within the larger space. Just beyond, a secondary living room offers a more relaxed setting, giving the home multiple areas to spread out.





A Staircase That Connects Materials
The staircase brings together recycled brick and timber. The bricks transition into wood treads, while a large black-framed window captures a view of a tree and the outdoor dining area. It turns a functional element into something that also frames the landscape.


Quiet Corners for Slower Moments
At the end of a hallway, a small seating nook sits beside a window. Upholstered benches make it a comfortable place for children to step away and spend time on their own.


Bedrooms That Keep Things Simple
In one bedroom, a partial wood wall forms the backdrop to the bed, integrating bedside tables and shelving into a single feature.


Another bedroom takes a lighter approach, with bright white walls and artwork adding color without overwhelming the space.

Bathrooms With Subtle Variation
The bathrooms each have their own look. One uses grey tones with a wood-lined niche, metallic tiles, and a freestanding bathtub.


Another pairs white walls with soft blue-green tiles and matching grout, creating a clean, contemporary feel.


A Home That Produces Its Own Energy
Sustainability plays a major role in the design. Solar panels cover the roof, allowing the house to produce around 100kWh of energy per day. That’s significantly more than the average Australian home.
A 26kWh Tesla battery stores energy for later use, helping the home operate efficiently and maintain performance even during outages.

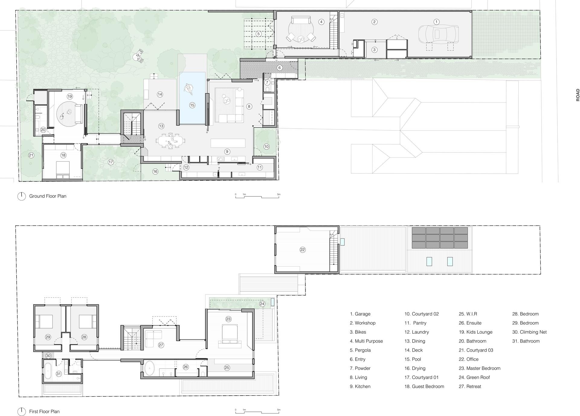
Understanding the Layout
To fully grasp how the spaces connect, the floor plan reveals how each zone is arranged and linked. It highlights how the home expands beyond what the exterior suggests, with each section playing a specific role.

Garden House is a project that unfolds gradually. What starts as a simple white form grows into a layered home shaped by garden, materials, and flexible spaces.